HECO MULTI-MONTI-plus F-Schraube - Senkkopf D7,5 x L160 - Réf. 48523
- Referenz48523
- HerstellungDeutsch
- MarkeHECO
- MaterialStahl
- VerkleidungVerzinkt weiß, A2K
- KopfformT-Drive
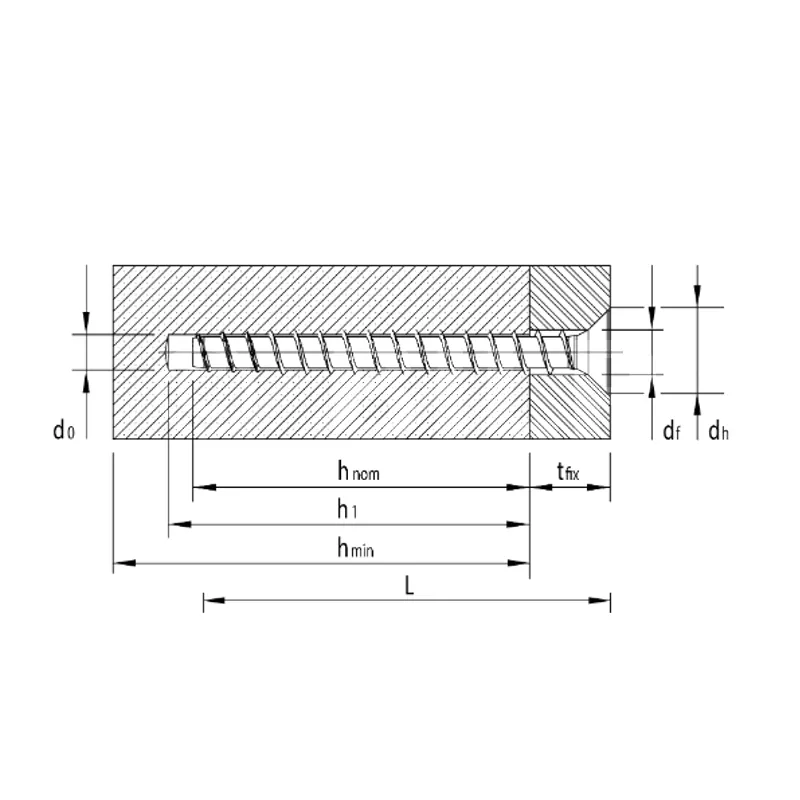
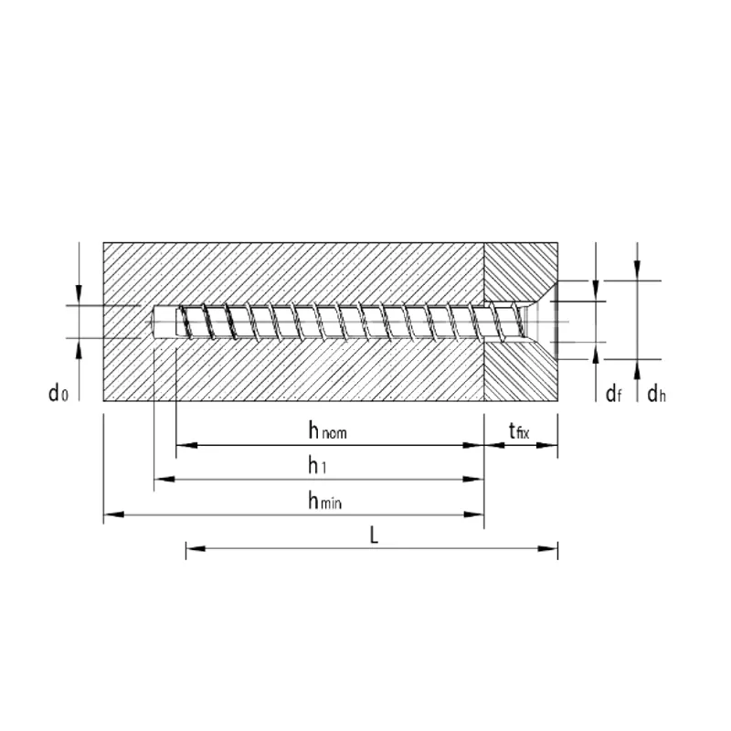
- Nominaler Bohrerdurchmesser6mm
- Durchmesser des Kopfs13,6mm
- Bohrlochtiefe, h165mm
- Nominale Verankerungstiefe, hnom155mm
- Gewindelänge78mm
- Art des KopfesSechskantkopf
- FeuerwiderstandsklasseF120/R120
- Maximale Dicke, tfix1105mm
- Maximale Dicke, tfix2125mm
- AntriebsgrößeT-40
- Bohrlochtiefe, h240mm
- Durchmesser der Durchgangsbohrung im zu befestigenden Element,df9mm
- Nominale Verankerungstiefe, hnom235mm
- Empfohlenes maximales Anzugsdrehmoment des Elektroschraubers, Tmax1100Nm
- Mindestdicke des Trägermaterials, hmin100mm
- Minimaler Randabstand, cmin40mm
HECO
Deutsche Qualität
Seit 1880 entwickelt und produziert HECO innovative Schrauben und Befestigungselemente, die weltweit mit großem Erfolg eingesetzt werden. HECO-Schrauben sind weltweit ein Synonym für Sicherheit und Zuverlässigkeit.
